

Embark on a once-in-a-lifetime restoration of a Historic Chicago mansion along the highly-sought after Lake Shore Drive. One of the “Seven Houses on Lake Shore Drive District,” 1516 North Lake Shore Drive is looking for the right owner ready to help re-establish it as an extraordinary single-family residence, consulate, or another not-for-profit headquarters after lodging the International College of Surgeons for 65 years. The mansion was originally built for Edward Tyler Blair, scion of one of Chicago’s iconic investment banking firms. Designed by notable architect William Kendall from the well-known New York firm of McKim, Mead and White, the home was completed in 1916 and designated a Chicago Landmark on June 28, 1989. It is also listed in the National Register and the Illinois Register of Historic Places.
1516 North Lake Shore Drive boasts a French-chateau-inspired stone main house with four stories and nearly 12,000 square feet of potential as well as a 2,400 square foot two-story coach house. The location provides breathtaking, uninterrupted views of Lake Michigan and is just steps away from Lincoln Park and a short distance from the heart of Chicago. Classic details and features are found throughout this magnificent space including beautiful millwork, marble staircases, stained glass windows, stone walls, rich wood paneling and herringbone laid hardwood floors.
Feel transported as you walk through the magnificent 10 foot wrought iron double doors and enter into the grand marble-encased foyer with detailed moldings. Two charming offices with original herringbone laid hardwood floors, one with a fireplace, and both en-suite, overlooking Lake Shore Drive and Lake Michigan. The west half of the first floor, currently used as large office and storage space, can be transformed into entertaining spaces, offices, or libraries.

Take the elevator or ascend the curved marble staircase with stained glass windows up to the second level with soaring ceilings, impressive detail, and generous space. Adorned with intricate millwork and created with a level of craftsmanship and attention to detail no longer seen in modern construction, the second level provides unmatched living space. The formal living room has three floor-to-ceiling windows that fill the room with light. The magnificent, oversized, original marble fireplace is the centerpiece of this rich and inviting room with elegant details like marble archways, wood paneling, detailed moldings surrounding the room, and a molded medallion at the center of the ceiling.


Continue into the formal dining room that can be enclosed by pocket doors. Walls of windows overlook Lake Shore Drive and beyond to the lake in this spacious, sophisticated dining room. Built-in bookshelves line the room anchored by an original fireplace with marble surround and impeccably detailed mantle, and hardwood paneling. An incredible plaster molded ceiling with geometric design sits above the herringbone laid hardwood floors in this inimitable dining space. Cross the living room to the family room with pocket doors. Rich paneled walls create a sophisticated space with hand-carved molding and original oversized marble fireplace in which to relax and entertain. The family room leads to a kitchen perfectly situated to make your own.
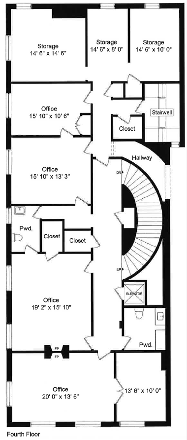
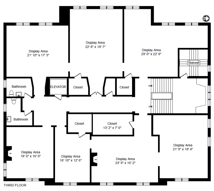
The third and fourth levels of this incredible building provide unmatched possibilities. Currently used as office and storage space, the top two levels can be transformed into gorgeous bedroom suites, recreation rooms, conference rooms, or additional libraries and office space — the possibilities are endless.
Own a part of Chicago history in this remarkable property—a true Gold Coast Lake Shore Drive mansion. Located on one of Chicago’s most recognizable streets, this property will provide residents with an unmatched foundation to create a truly one-of-a-kind space.


To inquire about 1516 North Lake Shore Drive contact the exclusive listing agents of Berkshire Hathaway HomeServices KoenigRubloff, Crystal Tran 312-404-5994, contact@crystaltranteam.com Click here to view interior photos of 1516 North Lake Shore Drive
- Click here to view floor plans of 1516 North Lake Shore Drive
- Click here to learn more about the Historic Gold Coast Neighborhood
- Click here to view 3D tour

























